Product quotation

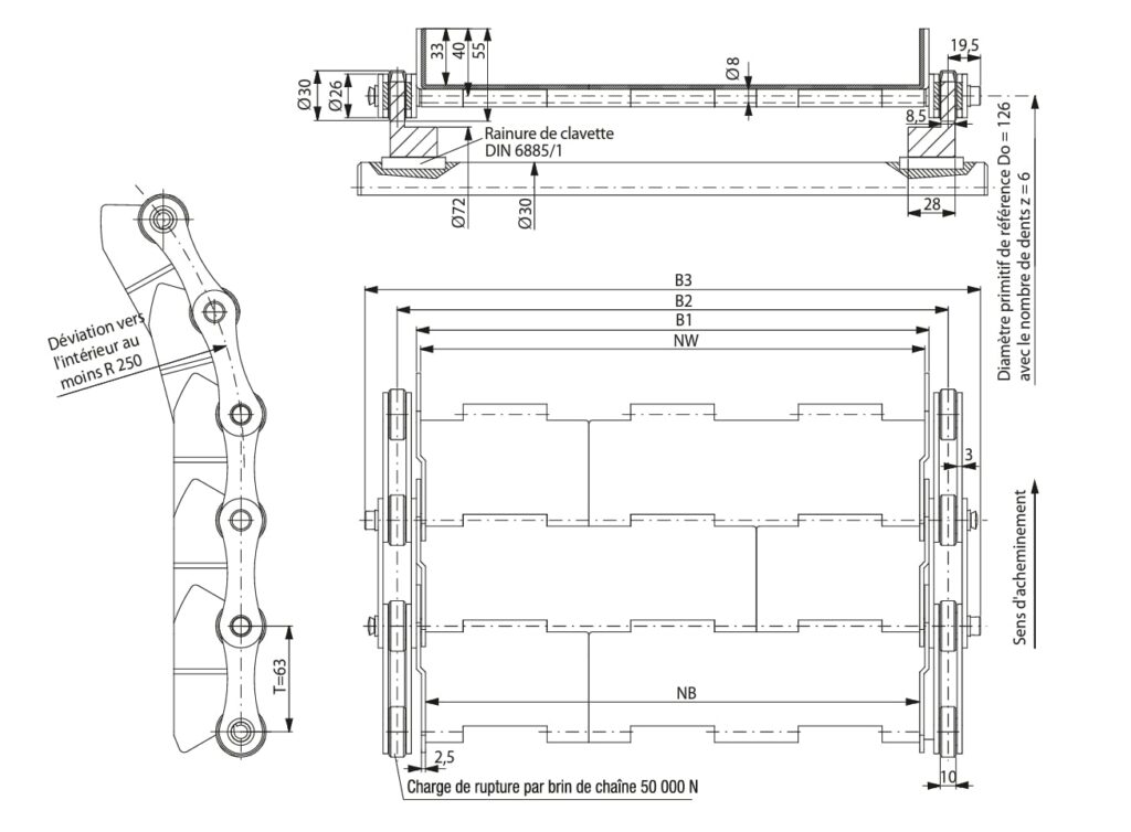
Steel mat 63 mm pitch – 10 mm spacing - Industrial volume

Steel mat 63 mm pitch – 10 mm spacing

Environment - Step 1 of 5

Products transported

Chip type and material

Copeaux convoyeurs